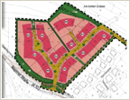
Die „Wellinger Spitze“ ist ein attraktives Wohngebiet mit insgesamt 22 individuell zugeschnittenen Baugrundstücken.
 
Zusammen mit den Grünzügen wurden die Straßen im Dezember 2006 vollständig fertiggestellt. Alle Anschlussleitungen sind bis in die einzelnen Grundstücke verlegt, so dass Straßenaufbrüche nicht mehr  erforderlich werden.
 
Es sind ausschließlich Einfamilienhäuser zulässig.
Bebauung: Max. 1 1/2 geschossig mit seitlicher Bauhöhe bis zu 5,50 m und Firsthöhe bis zu 11 m. Drempel- und Sockelhöhen sowie Dachformen und Firsrichtung sind frei wählbar. Die Tiefe der Baufelder beträgt 15 m.
 
Bebauungsplan „Wellinger Spitze“:
Ausweisung als „Allgemeines Wohngebiet“ mit überbaubaren Zonen. Einfassung und interne Gliederung des Baugebietes durch begrünte Bereiche.
Wellinger Spitze
OPEG Projektentwicklungsgesellschaft mbH
Floecksmühle
56299 Ochtendung
Tel. (02625) 9632-0    Fax. (02625) 9632-21
Prospekt download
als PDF-Datei
Unterschiedliche Grundstücksgrößen 517 qm bis 1.126 qm
 
 
 
 
www.gemeinde-welling.dehttp://www.gemeinde-welling.dehttp://www.gemeinde-welling.deshapeimage_4_link_0